都心では高嶺の花と言われる「高級・超高層タワーマンション」が、ほんの少し都会を離れるだけで手に入るとしたら…? 今回ご紹介するのは、都心のアクティブライフと、郊外のゆったりとした暮らしを両立可能という「おいしいとこどり…」の立地&物件です。
物件の購入を検討中あるいは不動産の物件見学が大好きという、新築マンションに興味津々のBAILAの読者組織スーパーバイラーズ3人がコンセプトルームをしっかりレポートします。
CONTENTS
- プロに聞く!「モデルルーム見学の心構え」とは?
- 【アクセス】JR京浜東北線「蕨駅」直結! 東京駅まで直通31分の好立地
- 【間取り図】 見学したのは専有面積67.38平米/2LDKのお部屋
- 【ポイント①】高級感のある明るい玄関
- 【ポイント②】都心ではなかなか難しい広々リビング
- 【ポイント➂】見晴らし最高! 天井から床までのワイドサイズの窓
- 【ポイント➃】独立した部屋としても使える落ち着いた書斎スペース
- 【ポイント⑤】ゆったりスペースとたっぷり収納で機能的なキッチン
- 【ポイント⑥】天井が高く窓も大きいのでWベッドを置いても広々。ホテルライクな寝室
- 【ポイント⑦】「あったら嬉しいポイント」がさまざまな場所に
- モデルルーム見学を終えた3人。それぞれの感想は?
- 「W CITY TOWERS」物件概要
- 新築マンション探検隊が過去に訪問した物件一覧
プロに聞く!「モデルルーム見学の心構え」とは?
新築マンションの購入を決定する際、重要な決め手となるのが事前の「モデルルーム見学」。
住まい探しのプロであるTERASS代表取締役社長、江口亮介さんによると、後悔しないマンション選びのカギは、「モデルルーム見学の際に、モデルルームと購入する部屋は別物、ということ意識しておくこと」だといいます。
というのも、モデルルームというのは多くの場合、広めのタイプ(=価格高め)の間取りであることが多いものです。見学する際は各部屋で、自分が購入予定のタイプと比較して同じくらいなのか、それとも広いのか、狭いのかをじっくり考えながら見る必要があります。
また、モデルルームのほとんどはオプション満載。「どこまでが基本設備で、どこからがオプションなのかもしっかり確認しましょう」とのこと。
こうしたアドバイスを頭におきつつ、いざモデルルームへGo!
【アクセス】JR京浜東北線「蕨駅」直結! 東京駅まで直通31分の好立地

東京のベットタウンとして大規模開発が行われている埼玉県・蕨市。その中心となるJR京浜東北線「蕨」駅から東京駅までは直通で31分。9分(3駅)で到着する赤羽駅で乗換えれば新宿まで29分、渋谷まで36分、上野へも26分でアクセス可能です。
そんな都心へのスピーディアクセスが魅力の蕨駅に徒歩1分で直結する、地上28階建て、総戸数413戸(非分譲住戸25戸含む)のツインタワーマンションが「W CITY TOWERS」です。
駅まで屋根付きデッキで徒歩1分 1−2階には商業施設、3階には行政センター、図書館も
大規模開発中の蕨駅周辺のシンボルとなるであろうこのマンション。駅西口とマンションの2階部分とが「ペデストリアンデッキ」と呼ばれる屋根付きの回廊で結ばれるので、雨の日も傘不要で駅に到着可能です。

また、1-2階には11店舗もの商業施設が入る予定で、3階には行政センターや図書館も入るとのことでとても便利。さらに、駅の周辺には保育園や幼稚園、小児科クリニックなど子育てに必要な施設も充実しています。
一方、マンション敷地内には広場も設けられており、周囲には公園もたくさん存在するという癒しの環境。
Instagram by @baila_magazine
そんな「利便性」と「ゆとり」を兼ね備えた欲張りなマンションをレポートするのは、家族構成もライフスタイルも異なる3人のスーパーバイラーズ。自分の「こだわりポイント」を中心に、ここでの暮らしをイメージしながらチェックしました!
訪問したバイラーズのプロフィールはこちら
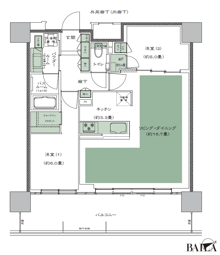
【間取り図】 見学したのは専有面積67.38平米/2LDKのお部屋
建設中の「W CITY TOWER」は、1LDKから3LDKまで、さまざまな広さ・間取りのタイプがあるとのことですが、今回お邪魔したのは、専有面積67.38平米、2LDK+納戸+ウォークインクロゼットというタイプのコンセプトルームです。

【ポイント①】高級感のある明るい玄関

扉を開けるとまずは白を基調にした明るい玄関、続いて廊下へ。その間3人はそれぞれに「おしゃれ~」「素敵!」「これいい~」を連発です。
【ポイント②】都心ではなかなか難しい広々リビング


夫と子ども2人の4人家族
長谷川有輝子
天井が高く、内装も白くて明るいので16.7畳という数字以上に広く感じますね。
【ポイント➂】見晴らし最高! 天井から床までのワイドサイズの窓

そしてリビングの正面には、蕨市が見渡せる大きな窓。昼間は明るい日差しが差し込み、夜は一面の夜景を堪能できます。

夫と2人暮らし
諸田景子
リビングは約16.7畳とのことですが、それよりずっと広く感じたのは、やはり大きな窓のおかげかなと思いました。蕨駅の周囲には大きな建物がないので低層階でも広い空を感じることができるのも魅力ですね。
【ポイント➃】独立した部屋としても使える落ち着いた書斎スペース
リビングルームと繋がっている約5.0畳の洋室。リモートワークに活用するのもよいし、リビングルームから目が届きやすいので、子どもの勉強部屋にも最適です。


洋室とリビングルームの間の引き戸を全開にすると、より広々とした空間に。

夫と2人暮らし
諸田景子
集中して仕事ができそうなスペースです。引き戸で仕切って独立した部屋として使うこともできますし、リビングとつなげて広く使うこともできます。その人の暮らしに合わせて使い方を自由に変えられるのがいいなと思いました。

こちらのスペースには、洋服を収納できるクローゼットや大きめの掃除機も分解せずにそのまましまえるゆったりとした納戸がありました。
【ポイント⑤】ゆったりスペースとたっぷり収納で機能的なキッチン
続いてキッチンへ。キッチンは調理台の幅が広いことや収納がたっぷりあることに感激! 料理が楽しくなることまちがいなしです。


夫と子ども2人の4人家族
長谷川有輝子
調理台の幅が広いので、食材を広げたりお皿を並べたりするスペースが十分あって、スムーズに料理ができそうです。また、シンクが大きいのも洗い物が楽にできそうで嬉しいです。


単身世帯
斎藤珠衣
置き場所に困りがちなホットプレートもしまえるような、高さのある引き出しがあるのがありがたいです。

デッドスペースになりがちな冷蔵庫の上には、オプションで収納スペースを設置することも可能です。
【ポイント⑥】天井が高く窓も大きいのでWベッドを置いても広々。ホテルライクな寝室
最後のお部屋は約6畳の洋室。天井が高く、窓も大きいので開放感があります。こちらの部屋の窓からもバルコニーに出ることができます。

大きいサイズのベッドをおいてもゆったり。ベッドのヘッド側にあたる壁にはオプションでボードを設置可能。ホテル風のラグジュアリーな寝室を演出できます
【ポイント⑦】「あったら嬉しいポイント」がさまざまな場所に
バスルームや洗面台も充実した機能性

ミストサウナでくつろぎのバスタイムも

洗面室の三面鏡のを合わせ鏡として使えば、後ろの髪もちゃんと見ながらヘアアレンジできます。
充実したシューズクローゼット

たっぷり靴が入るシューズクローゼット。これだけスペースがあれば家族が増えても安心!隣にはアウトドアグッズなどをしまっておくスペースも

おしゃれな素材感の扉で、玄関がすっきりと高級感漂うスペースに
モデルルーム見学を終えた3人。それぞれの感想は?
マンション見学は無事、終了。さて、3人がいちばん印象に残ったところはどんなところ?
住みやすそうでおしゃれ! 実用性とデザイン性を兼ね備えたマンション

内廊下も高級感のある作りでまるでホテルのよう

単身世帯
斎藤珠衣
すごくおしゃれなマンションでした。ホテルライクな暮らしがしたい私にとって、すごく素敵だなと思うポイントがいっぱいでした。デザイナーズマンションだと「かっこいいけど、実際に住んでみたらちょっと暮らしにくいかも」という物件も見かけますが、ここは居住性とデザイン性が両立していて、住みやすくておしゃれな暮らしができそうだなと思いました。
便利な立地と子育て環境も魅力!


夫と子ども2人の4人家族
長谷川有輝子
マンションを取り囲む地域には、昔ながらの商店街があったり、子育てに欠かせない保育園や幼稚園を始め、公園や児童館などの遊び場もあり、子育てしやすい街だなと思いました。
大きな窓からの眺めが素晴らしい!


夫と2人暮らし
諸田景子
私のお気に入りポイントはなんといっても大きな窓!実際、現在の私の家もダイレクトウィンドウ(ベランダのない大きな窓)で、そこがお気に入りの場所。ここも、窓からの眺めが素晴らしいです。あまりにも気持ちよくて、窓のそばに座ってぼんやりと外の景色を眺めているだけで一日が過ぎてしまいそうです。この窓のすばらしさを見るためだけでも、モデルルームに足を運ぶ価値があるなと思います。

3人それぞれ「もし、自分がこのマンションに住んでみたら」をイメージしながらレポートは終了しました。最後は、コンセプトルームのインテリアとして置かれていたグラスを使って「乾杯!」のポージング。コンセプトルームは公開になったばかりとのこと。ぜひ予約をしてこのおしゃれな暮らしを疑似体験してみて!
「W CITY TOWERS」物件概要
■名称:W CITY TOWERS
■所在地:埼玉県蕨市 中央一丁目206番(地番)
■交通:JR京浜東北線「蕨」駅まで徒歩1分(一部ペデストリアンデッキ経由[予定])
■総戸数:413戸(非分譲住戸25戸含む)、その他店舗11区画、公益施設1区画
■入居(引き渡し)予定日:2028年1月下旬
■構造・階数:鉄筋コンクリート造、一部鉄骨造 地上28階建 地下1階建
撮影/山田真由美 動画編集/高橋乃愛 取材・文/瀬戸由美子














































単身世帯
斎藤珠衣
お部屋に入った瞬間、玄関の床材とか壁の木目とか、シンプルなのにどこかおしゃれ感があって、すごく好きな雰囲気でした。それから、リビングの壁が大理石(オプション)というのも、高級感があって素敵だなと思いました。